- 著作权介绍
- 产品介绍
- 视频展示
- 购买评论
- 产品问答
- 购买须知
- 试用下载
北京数码大方科技股份有限公司(CAXA)是中国领先的工业软件和服务公司,主要提供数字化设计(CAD)、数字化制造(MES)、产品全生命周期管理(PLM)和工业云服务平台的产品和服务。数码大方是中国最大的CAD和PLM软件供应商,也是中国工业云的倡导者和领跑者。
数码大方始终坚持技术创新,自主研发二维、三维CAD和PLM平台,是最早从事此领域全国产化的软件公司,研发团队拥有多年专业经验积累,具有国际领先技术水平,在北京、南京和美国设有三个研发中心,拥有超过150项著作权、专利和专利申请,并参与多项国家CAD、CAPP等技术标准的定制工作。
数码大方的产品拥有自主知识产权,产品线完整:主要提供数字化设计(CAD)、数字化制造(MES)以及产品全生命周期管理(PLM)解决方案和工业云服务。数字化设计解决方案包括二维、三维CAD,工艺CAPP和产品数据管理PDM等软件;数字化制造解决方案包括CAM、网络DNC、MES和MPM等软件;支持企业贯通并优化营销、设计、制造和服务的业务流程,实现产品全生命周期的协同管理。工业云服务平台主要提供云设计、云制造、云协同、云资源、云社区、云存储等服务,涵盖了企业设计、制造、营销等产品创新流程所需要的各种工具和服务。
数码大方拥有8个营销和服务中心、300多家代理商、600多家教育培训中心。公司用户覆盖机械装备、汽车、电子电器、航空航天、教育等行业,包括徐工集团、西电集团、中国二重、东汽、东电、北汽福田、东风汽车、新飞电器、格力电器、灿坤电器、沈飞、哈飞、成飞等企业在内的30000家企业,以及包括清华大学、北航、北理工等3000所知名大中专院校。
数码大方致力成为世界一流的工业软件和服务公司!
软件名称: CAXA CAD电子图板2015
产品类别: 数字化设计
软件大小:
发布日期: 2014/11/18
语言版本: 简体中文版 | 繁体中文版 | 英文版
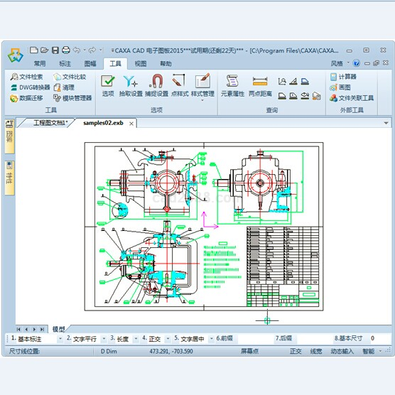
产品简介: CAXA CAD电子图板是由数码大方自主开发、具有完全自主知识产权的二维CAD软件产品。学易用,稳定高效,性能优越,可以零风险替代各种CAD平台,比普通CAD平台设计效率提升100%以上。荣获软件行业“二十年金软件奖”。
“易学易用 专业高效 ”
电子图板由CAXA自主开发、具有自主知识产权的二维CAD软件产品。至今已经有30万正版用户,沈鼓集团、格力电器、北汽福田、东风汽车等大中型企业全面应用CAXA电子图板,实现了电子图板和企业业务流程以及其它信息系统的整合应用。
支持最新的操作系统和64位应用
CAXA CAD电子图板支持最新的windows操作系统,也提供了64位版本程序支持更好的大图处理性能。
专业的集成组件和二次开发平台
CAXA CAD电子图板定位为开放的二维CAD平台,除包括基本的CAD功能外,还提供了PDM集成组件和CRX二次开发接口。其中:PDM集成组件包括浏览和信息处理组件,并提供了通用的集成方案,适用于与各类PDM系统的集成应用;CRX二次开发接口提供了丰富的接口函数、开发实例、开发向导、以及帮助说明。

全面兼容AutoCAD

丰富的图形绘制和编辑功能
提供多种便捷图形绘制功能如直线、圆、圆弧、平行线、中心线、表格等。
提供孔/轴、齿轮、公式曲线、样条曲线、局部放大、多边形等复杂图形的快速绘制功能;
提供多种图形编辑功能,如平移、镜像、旋转、阵列、裁剪、拉伸,各种圆角、倒角过度等。


局部放大图
符合最新国标的智能标注和工程标注
一键智能尺寸标注,自动识别标注对象特征,一个命令就可完成多种类型的标注;
提供符合最新制图标准的坐标标注、粗糙度、形位公差、焊接符号、基准代号等多种工程标注功能;
尺寸标注时可进行公差和各种符号的查询和输入,所有尺寸值、公差值以及尺寸和符号的位置都可随图形的变化而自动关联,大大提高效率并杜绝人为原因导致的错误。

尺寸关联

工程标注
简单易用的界面和操作
除经典界面外,增加全新Ribbon选项卡方式的界面,并可自定义界面色彩。
属性编辑、图库、设计中心等都可以直接在专用面板操作。
提供立即菜单并行操作方式,可以实时地反映用户的交互状态,用户可以随时地调整交互流程,而不受交互深度的限制,节省用户大量的交互时间。

丰富的国标图库和构件库


开放而快捷的图幅功能
提供开放的图纸幅面设置系统,可以快速设置图纸尺寸、调入图框、标题栏、参数栏、填写图纸属性信息。
还可以快速生成符合标准的各种样式的零件序号、明细表、并且零件序号与明细表可以保持相互关联,极大提高编辑修改的效率。
根据用户需求可进行绘图模板、图框、标题栏等的自定义,使设计工程标准化。

多种专业工具和模块
文件比较可按给定参数将图纸的不同部分、相同部分显示出来,以便提高审图效率。
文件检索:可按设定的检索条件搜索CAD文件。
工程计算器:通过建立公式输入相应数据便可得到所需结果,从而实现各种复杂的工程计算,满足特定行业设计应用需要。
PDF和图片输出:可以将CAD图纸输出为高质量的PDF和图片文件。



专业出图和批量排版工具

产品为厂家正品,店主、CAD2688网、淘宝支付三重保障,全网低价,放心购买!假一罚十!
购买后,我们会免邮费给你邮寄盒装正品!