中望结构2015
中望结构是一套按照我国建筑行业与钢结构行业CAD制图标准,基于中望CAD平台上开发出来的专业结构设计绘图软件,支持参数输入,提供方便的计算工具、结构符号、结构查询、尺寸文字工具,图框工具等。

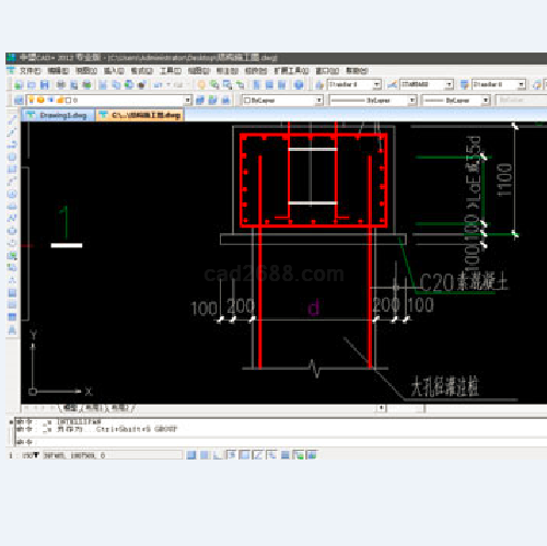
专业绘图工具

提供完善的钢筋绘制和编辑工具
钢筋绘制采用实时预览方式绘制,并能自动生成标注。
钢筋编辑及钢筋计算工具。

兼容建筑模块

符合行业标准

智能计算功能


产品为厂家正品,店主、CAD2688网、淘宝支付三重保障,全网低价,放心购买!假一罚十!
购买后,我们会免邮费给你邮寄盒装正品!